F
I
C
H
A
T
É
C
N
I
C
A

















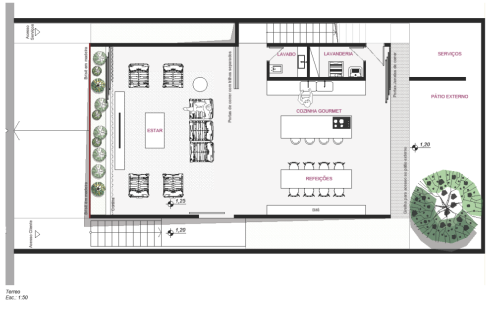
A Residência YT foi desenvolvida com formas puras e traços brutalistas. Dois planos de concreto ripado, afastados das divisas por circulações verticais, organizam os espaços em conjunto com o plano verde da fachada principal. A escada de acesso, exigida pelo recuo lateral obrigatório do condomínio, foi implantada para vencer o desnível do térreo — uma decisão que trouxe aproveitamento e personalidade ao projeto.
Ficha técnica
Projeto Residência YT | Curitiba, PR
Localização
Curitiba, Paraná.
Área Construída
292,65m²
Arquiteto Responsável
Luiz Volpato
Renders
Luiz Volpato Arquitetura
Ano do Projeto
2016
Área do Terreno
200,00m²
Coordenação de Projetos
Luiz Volpato Arquitetura
Time de Projetos
Luiz Volpato Arquitetura
Arquitetos
Daniel Andraski e Eduardo Macarios